| 2014 | 1402 - Architecture intérieure d'un appartement en duplex, à Chaves au Portugal |
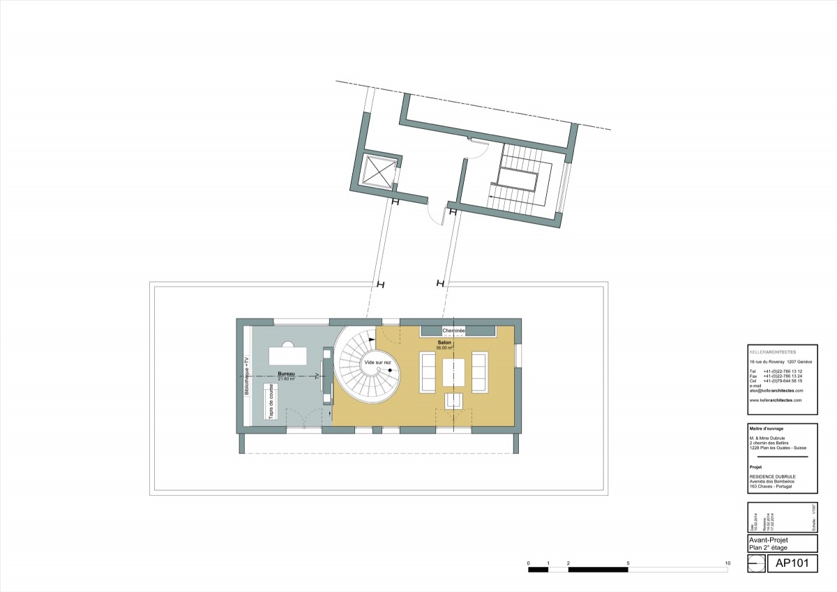
L'appartement est composé de deux niveaux dont l'un en attique, offre une grande terrasse et une vue dégagée sur la ville de Chaves, au Portugal.
Le niveau bas comprend deux chambres en suite avec salles de bain ou/et douche et dressing, une salle à manger ouverte grâce à une double porte coulissante sur une grande cuisine. Un ilot technique articule la zone d'entrée et dissocie les espaces de réception des zones de service. Il comprend des placards pour l'entrée et un cellier / buanderie pour la cuisine.
Un escalier hélicoïdal orne l'entrée et donne accès au niveau en attique où sont implantés un vaste salon et un bureau, tous deux ouverts sur la terrasse.
Collaboratrice : Elodie Giraud
| |